Werkstoff: Edelstahl 1.4301 (V2A).

Kugelgelagerte Präzisions-Teleskopschienen für Anwendungen in Industrie und Elektronik. Verkauf paarweise: 1 Artikel = 1 Schienenpaar

• Schnelltrennung.

• Selbsteinzug auf den letzten 45mm.

• Für Schubladenbreiten bis 1000mm bei hoher Belastung.

• Nutzungsdauer 80.000 Zyklen.

• Temperaturbereich: +0°C bis +40°C. Lagerung: -20°C bis +80°C.

Öffnungs-Kraft 25N +/-5N.

Hinweis: Empfohlene Befestigung: M5 Senkkopfschraube / Euro-Senkkopfschraube 6mm.

Es sind alle Befestigungspositionen zu verwenden, damit der maximale Lastwert erzielt wird.

Achtung: Die Schiene darf nur vertikal (hochkant) montiert werden.

Die Tragkraft wurde mit einem Schienenabstand von 450mm getestet.

Beim Wiedereinführen der Innenschiene muss die Mittelschiene in eingefahrener Position sein.

Die notwendige Kraft muss gleichmäßig aufgebracht werden.

Service:

Katalogseite

Zusätzliche Informationen

Montageanleitung



Die angebotenen CAD-Daten, Abbildungen und technischen Zeichnungen werden mit größtmöglicher Sorgfalt erstellt.
Dennoch kann keine Gewährleistung für die Fehlerfreiheit und Genauigkeit dieser Daten übernommen werden.

( freibleibend aus Lagervorrat / kurzfristig lieferbar / Lieferzeit nach Vereinbarung. Bitte fragen Sie nach. )
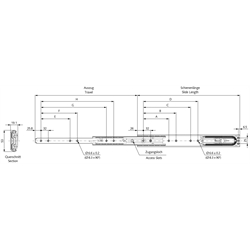
Artikel Menge TypSchienenlänge
[mm]
Auszug +/- 3
[mm]
A
[mm]
B
[mm]
C
[mm]
D
[mm]
E
[mm]
F
[mm]
G
[mm]
H
[mm]
Lastwert / Paar
[kg]
Gewicht / Paar
[kg]
64904740
DS5334-0040EC400388160192--128160-28865 / 551,99
64904745
DS5334-0045EC450450160192256-128160-32065 / 552,27
64904750
DS5334-0050EC500500192224--160192-38470 / 602,57
64904755
DS5334-0055EC550550192224320352160192-41685 / 722,87
64904760
DS5334-0060EC600600256288384416192256-48090 / 803,18
64904770
DS5334-0070EC70070028832044848025628851257690 / 803,79
64904779
DS5334-0080EC79080035238454457632035241667290 / 754,42


zur Gruppe


Impressum AGB Hilfe Datenschutzerklärung Index


MÄDLER on Facebook Facebook MÄDLER on Youtube YouTube MÄDLER on Twitter Twitter MÄDLER on Instagram Instagram MÄDLER on Xingk Xing MÄDLER on Linkedin LinkedIn